해당 공고는 최초 모집(21년9월) 이후 미계약 및 해지세대에 대한 추가입주자를 모집하는 공고이며 입주자격 요건(소득 및 기간요건)을 완화하였습니다.

저는 중요하다고 생각되는 건물의 위치, 모집호수, 공급계층, 계약면적, 보증금과 월임대료 등을 중심으로 간단히 소개해보겠습니다.
지원하고 싶은 마음이 생기신다면 글 마지막에 해당 공고문을 받아서 자세한 자격요건을 확인해보시기 바랍니다.
연령 · 소득 · 재산 기준 자세히 확인
1. 건물위치
주소 : 강원특별자치도 삼척시 대학로 29
입주예정월 23년 12월예정으로 블로그 작성일(23년7월) 기준으로 아직 준공되지 않았습니다.
주변 현황 : 삼척엑스포광장(도보15분), 삼척고속버스터미널(도보15분), 홈플러스(도보15분), 삼척시청(도보17분)
강원대학교 삼척캠퍼스(도보30분/ 차량5분)
삼척시 시내 인근에 위치하여 남녀노소 다양한 편의시설을 이용하기에 편리하다고 생각됩니다.
2. 모집일정
입주자 선정 절차 및 공급일정은 아래와 같습니다.

3. 임대대상 및 조건

자신이 대학생,청년,고령자, 주거급여 수급자계층에 해당되는지 알고 싶다면 글 마지막에 공고문을 확인해보시길 바란다.
16형주택 대학생 및 청년계층은 최소 임대보증금이 3,156,000원일 때, 월 임대료 104,020원
임대료를 최대한 낮추기위해 전환가능한 보증금 한도액이 15,156,000원일 때, 월임대료 81,110원
26형주택 대학생 계층은 최소 임대보증금이 4,168,000원일 때, 월 임대료 163,110원
임대료를 최대한 낮추기위해 전환가능한 보증금 한도액은이 22,168,000원일 때, 월임대료를 125,610원
26형주택 청년 계층은 최소 임대보증금이 4,472,000원일 때, 월 임대료는 172,580원
임대료를 최대한 낮추기위해 전환가능한 보증금 한도액은이 23,472,000원일 때, 월임대료를 133,000원
26형주택 고령자 계층은 최소 임대보증금이 4,776,000원일 때, 월 임대료는 182,050원
임대료를 최대한 낮추기위해 전환가능한 보증금 한도액은이 24,776,000원일 때, 월임대료를 140,390원
26형주택 주거급여수급자 계층은 최소 임대보증금이 3,560,000원일 때, 월 임대료는 144,170원
임대료를 최대한 낮추기위해 전환가능한 보증금 한도액은이 19,560,000원일 때, 월임대료를 110,840원


직방, 다방, 네이버 부동산 등을 돌아봐도 원룸 투룸매물이 10개이상 보이지 않아 평균적인 금액을 알기 어렵지만 행복주택의 10만원대임대료는 충분히 매력적입니다.
16형주택은 6평이 안되는 전용면적으로 공간에 큰 기대를 하지 않는게 편합니다. 주변지인들과의 모임공간보다는 정리정돈 잘하고 등하교 또는 출퇴근 후 휴식공간으로 지내는 용도로 사용하면 좋습니다.
26형주택은 개인적으로 넓지도 좁지도 않은 애매하다고 생각됩니다. 저는 24㎡ 전용면적의 원룸(거실겸 방1)에 월세30으로 지내고있는데, 솔직히 2명이서 지내기에는 좁고 불편하다고 생각되어집니다.
삼척시 원룸매물을 돌아보다 저의 원룸 월세보다 5만원 비싸지만 방2개욕실1인 아파트 월세가 보여서 아쉬웠습니다. 저희 동네 행복주택 지원은 이미 떨어진 상태라 돈 몇만원 더 주고 훨씬 쾌적한 공간에 살고 싶다는 마음이 컸던 것 같습니다.
작년에 이미 최초모집을 하였습니다. 최초모집시 16형주택은 58호수 모집에서 현재 40호수 남았으며, 26형주택은 최초 40모집에 현재까지 40호수 모집하는것으로 보아 당첨자가 없는 것으로 예상됩니다.
이유는 여러가지가 있을 수 있습니다. 1세대 1주택 신청 시 대부분의 사람들이 더 큰 규모의 공급호수(36형주택)에 지원하면서 순위에 밀려 떨어졌을 수 있고, 당첨가능한 대학생 및 청년 계층에게 매력적으로 보이지않아서 지원률이 낮았을 수도 있으며, 최소 보증금인 3~4백이란 금액도 누군가에게 부담이 되었을 수도 있습니다. 삼척시에 외부에서 유입한 젊은 계층이 적고, 삼척시가 고향인 젊은사람들이 본가를 나와서 독립하기에는 메리트가 없었을테고, 새로이 가정을 꾸려서 돈을 모아나가는 신혼부부들은 36형주택에 지원했을 것으로 예상되어집니다.
여러가지 부분(현재 자산현황, 앞으로의 주거계획, 진로 등)에서 고민 해보시기 바랍니다.
해당 행복주택에 지원해보고 싶다하시면은 공고문에서 자신이 공급대상 지원계층에 해당하는지 확인해보시고, 자세한 문의는 공고문 마지막에 부착된 콜센터에 문의해보시기 바랍니다. 행운을 빌어요!
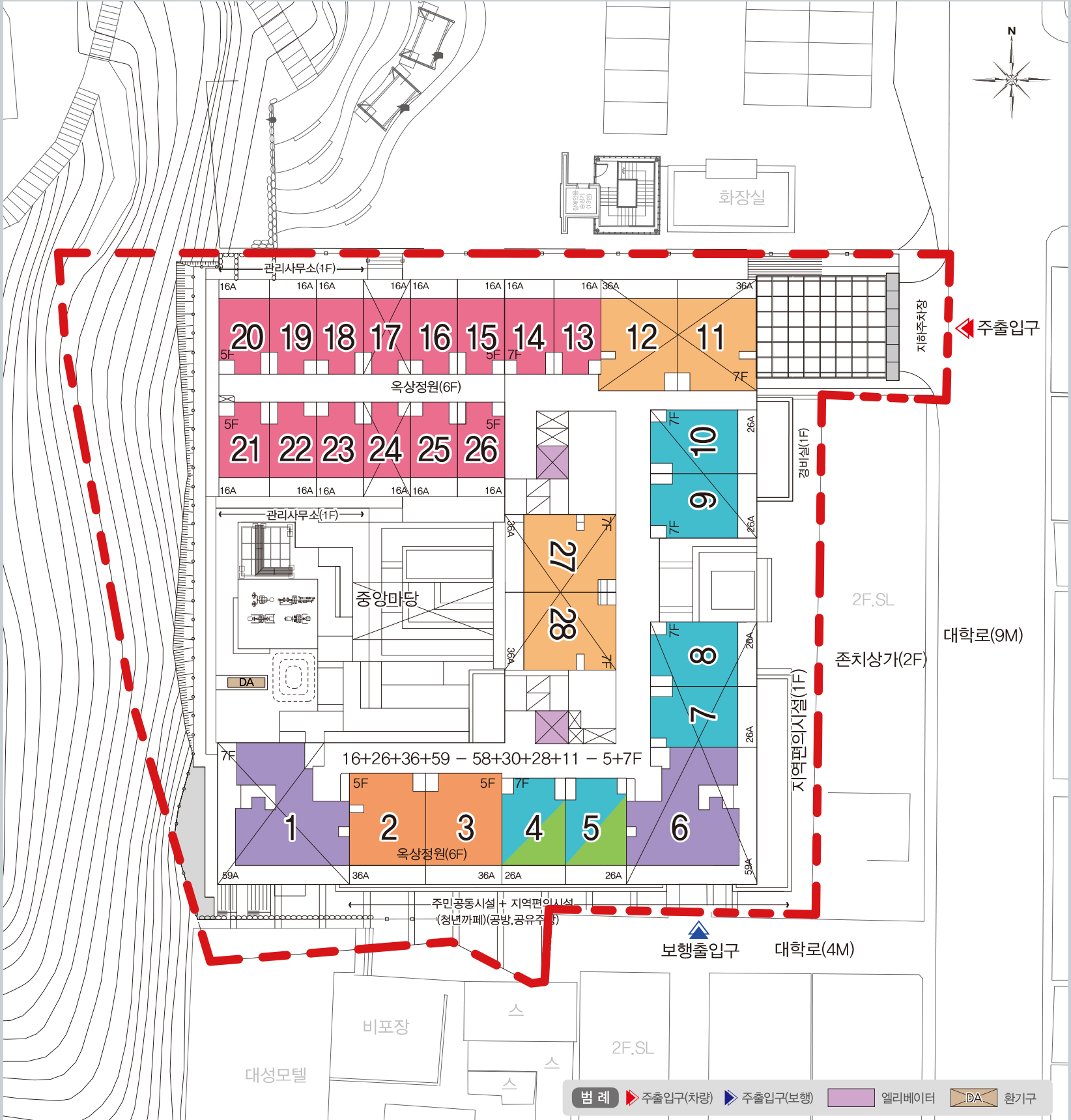
추가로 16형주택과 26형주택 평면도 사진을 추가로 첨부하였습니다. 슬라이드이므로 이미지 좌우 끝에 <,>버튼 누르시면 확인 가능합니다.




다양한 공고내용은 '마이홈포털' 홈페이지에 접속하셔서 확인하실 수 있습니다.
마이홈포털에 대한 설명은 이전 글을 참고하시면 되겠습니다.
마이홈포털(공공주택 관련 온라인 플랫폼)의 기능 및 이점
안녕하세요. 오늘은 한국의 주택도시공사인 '한국토지주택공사(LH)'에서 운영하는 온라인 플랫폼인 마이홈포털의 기능과 이점에 대해 전하고자 합니다. 마이홈포털: 공공주택 신청부터 유지보
dd9-architect.tistory.com
'공공주택 > 강원특별자치도' 카테고리의 다른 글
| 강원도 행복주택 남원주 A6블록 추가 입주자 모집(23.07.10) LH공고 (0) | 2023.07.10 |
|---|